ビル用サッシ・フロントサッシ
ビル用サッシ・フロントサッシ
ビル用サッシ・フロントサッシ 【解説】隠し框とは?|特徴とメリットデメリット
質問と回答(Q&A) 【Q&A】ガラスの色で「日射遮蔽型/取得型」が決まるの?
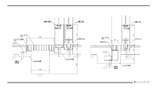
質問と回答(Q&A) 【Q&A】サッシ周りにモルタルを詰める理由は?注意点は?
関連情報(シール・ガラス・曲物) 【解説】サッシ周りモルタル「トロ詰め」の手順と注意点
建築関係者向け 【解説】金属製サッシ施工の工程と管理基準
建具の基礎知識 【解説】窓・サッシの性能|JIS等級と実務での選び方
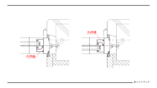
質問と回答(Q&A) 【Q&A】内押縁、外押縁の使い分けと選択のポイント
総合まとめ情報・一般情報 【おすすめ書籍5選】建築施工図・詳細図集
ビル用サッシ・フロントサッシ 【解説】「樹脂サッシ」「アルミ樹脂複合サッシ」比較
ビル用サッシ・フロントサッシ 