サッシと躯体の隙間をモルタルで埋める工程を「トロ詰め」「モルタル詰め」「サッシモルタル」「サッシ埋め」「サッシ込み」などと呼びます。トロ詰めは、防水性・耐風圧性・遮音性などを確保するために重要な工程です。
この記事では、トロ詰めの手順と注意点について説明します。
本記事で出る図面の見方が分からない方は【完全保存版】サッシ図の基本|見方・読み方徹底解説
サッシ用語が分からない方は建具(窓・ドア)用語集・用語解説も合わせてお読みください
材料の準備と練り混ぜ
モルタルの性能を引き出すために、適切な練り方と調合が必要です。
配合と練り順序
- セメント1:砂3:水0.5~の比率で調合
- 外壁の場合、防水剤(マノールなど)は製品の規定量を添加。粘り気を出し施工性も向上
- セメントの固着を防ぐため、ミキサーには砂を先に投入。砂の後にセメント→水→防水剤を投入
- 砂の湿り具合を確認し、セメント量や水量を微調整
公共工事標準仕様では1:3(いちさん)モルタルが指定されていますが、実際の現場では施工性を考慮し、1:2.5~1:3の範囲で調整されることもあります。1:3ではパサつきサクサクし複雑なサッシ枠の隙間にモルタルが詰めづらいためです。
アルミニウム製建具、樹脂製建具、鋼製建具、鋼製軽量建具、ステンレス製建具は共通で下記の仕様
枠の周囲に充填するモルタルは、表15.3.3[調合 (容積比) 及び塗厚の標準]による。
出典:国土交通省ウェブサイトより 公共建築工事標準仕様書(建築工事編)令和7年版
(https://www.mlit.go.jp/gobuild/gobuild_tk2_000017.html)
プレミックス製品(NSわくモル等)の使用
現在は水を加えるだけで使用できる「NSわくモル」などのプレミックス製品が使用される場合が多いです。とくに材料ゼネコン支給の場合は、ほとんどプレミックス製品を使用するようで、価格は高いですが、使用するメリットが多いです。
- 水を加えて練るだけで使用が可能(性能を確保するため、練り時間は3分以上)
- 無収縮剤が添加されており、普通モルタルと比較し、乾燥収縮によるひび割れが少ない
- 流動性、接着性も高く施工性が良い
とくに関東など大きな現場では、現場調合することはなく、プレミックス製品の使用がほとんどです。モルタル業者でさえミキサー車で材料を運びます。
昔よくいた使う場所や用途、気候や砂の粗さなどを見極め、現場で微調整する職人さんも、大きな現場では今は見ないそうです。
施工前の下準備
モルタルの漏れを防ぎ、作業効率を高めるための準備を行います。
- 一般のRC造抱き納まりでは、水切部はモルタルが漏れないよう木の板を固定
- サッシの三方(縦と上)にバックアップ材を設置
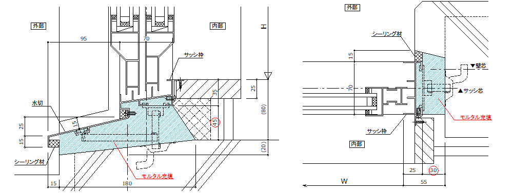
これはサッシ下枠(←左)および縦枠(右→)の納まりを示したサッシ図です。室内側からモルタルを充填するため、外部側にはバックアップ材や木板などを設置します。

サッシ図の見方が分からない方はこちら【完全保存版】サッシ図の基本|見方・読み方徹底解説
モルタルガン(モルタル充填器)の動作をスムーズにするため油を差したり、コンクリートの乾燥状況を見て、吸水調整剤を塗布するなど、現場の状況に合わせた判断も重要
「吸水調整剤」・・・吸水の激しいコンクリート面に塗布し、モルタルの水分が急速に吸い込まれるのを防ぐ樹脂系下地処理材
モルタルの充填手順
モルタルガン(モルタル充填器、モルタルポンプ)を使用して隙間なくモルタルを注入します。
注入の順序
- 注入順序に決まりはないが、一般的には縦の下から上に向かって施工
- 続いて上部を充填し、最後に下部の順で施工

確実な充填のための作業

- 充填時はサッシ位置仮固定用のくさびを外すが、屋内の場合はくさびを残して作業可
- サッシの下枠(←左)は水切の奥、また下枠の中まで充填が必要。ポンプでの注入だけでは十分に充填ができないため、木の板などでモルタルを奥まで押し込む
- サッシ枠を指や工具で軽く叩き、音で充填状態を確認。正しく充填されると重い音に変化
- 沓摺など下枠にモルタルが詰めづらい形状の場合はサッシの取付前に先行で詰めておく
2節 アルミニウム製建具
出典:国土交通省ウェブサイトより 公共建築工事標準仕様書(建築工事編)令和7年版
よくあるトラブル~断熱サッシのモルタル詰め~
断熱サッシには、枠の中央付近に断熱材(図のピンク色部)が組み込まれている製品があります。その場合、枠の断熱材より外側にのみモルタルを充填します。通常のサッシと同じように施工するとモルタルがヒートブリッジとなり結露の原因となります。
断熱サッシも多様で、室内側に樹脂の化粧カバーが付いただけの製品、枠自体が樹脂の製品などあるため、仕様とサッシ図をよく確認する必要があります。

表面の仕上げと清掃
充填が完了したら、室内側の表面を整えます。
コテ仕上げ、モルタルの清掃
- はみ出した余分なモルタルを削り取り、サッシ枠からモルタルが出ないよう、枠内で納め平滑に仕上げる
- 下部はモルタルが垂れやすく隙間ができやすいため注意。上方向に持ち上げるようにコテで処理
- 枠に付着したモルタルが硬化する前に水を含ませたスポンジ等で清掃。固まると除去困難な場合も
外部側の処理と最終確認
室内側の処理が終わった後、外部側からも施工品質をチェックします。
- バックアップ材や板を撤去し、モルタルが隅々まで行き渡っているかを目視で確認
- はみ出している余剰分を削り取り、周囲を清掃
- 最後にもう一度全体を叩いて音を確認し、充填不足がないことを確かめて作業完了



コメント