この記事では、ドアとグレーチングの取り合いの標準的な納まり図を解説付きで掲載します。
ドアはアルミ製建具自動ドアで解説します。
サッシ図の詳しい見方は【完全保存版】サッシ図の基本|見方・読み方徹底解説
この解説で使用したCADデータはこちらでダウンロード可能です
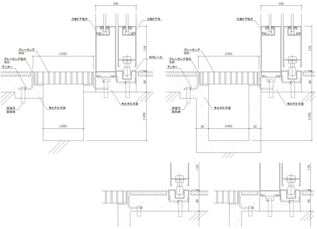
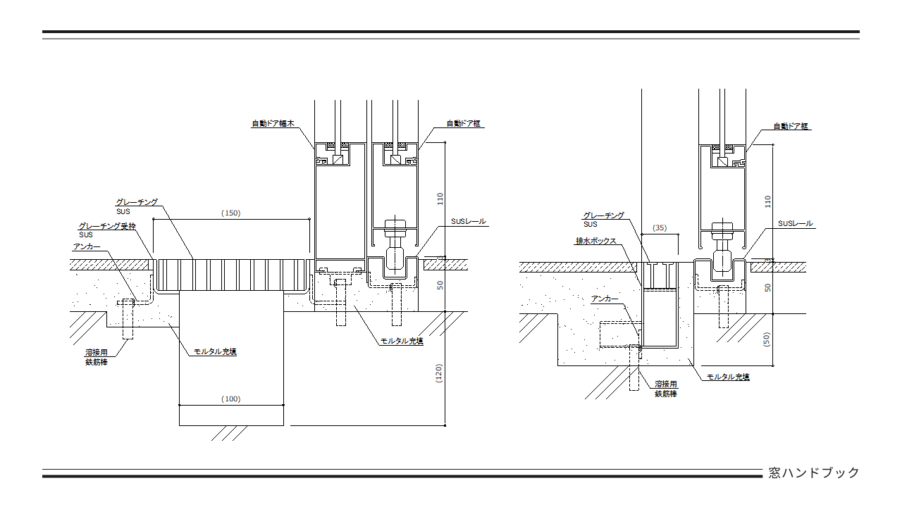
現場打ち側溝・グレーチング 自動ドア取り合い標準図
自動ドアとステンレスグレーチングの最も一般的な取り合い部の納まり図です。
- 側溝は現場打ち。左図は左官なし、右図は左官あり
- グレーチングのSUS受枠は現場施工
- グレーチングは一般に金属工事
- 上段右図はグレーチングをサッシ際まで近づけるため、サッシアンカー打設で躯体が欠ける可能性に注意
- 対策は下段右図のように、グレーチングとサッシの距離を取る
- 位置関係は躯体形状やタイル割により決定。下段左図はドア部の取り合いのイメージ

現場打ち側溝で、グレーチングの受枠は打ち込みタイプです。

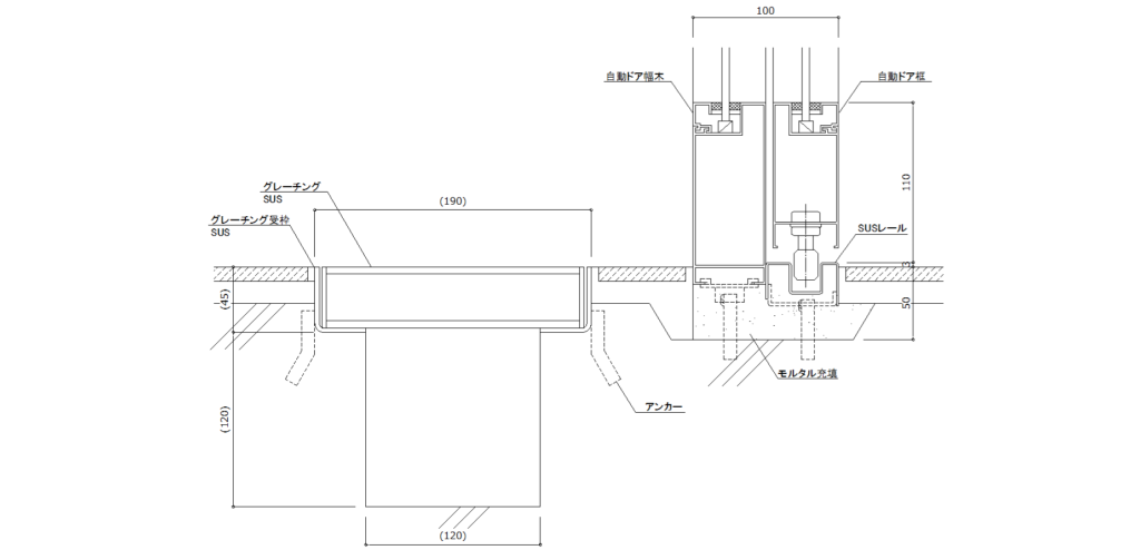
排水ユニット 自動ドア取り合い標準図
排水ユニット(排水ボックス+グレーチング)を使用する場合の、自動ドアとの取り合い詳細図です。固定方法やドアとの位置関係はグレーチングの製品仕様を確認の上、金属工事業者と調整が必要です。また上記同様、本図のようにサッシ際まで排水ユニットを近づける場合、躯体の割れに注意が必要です。

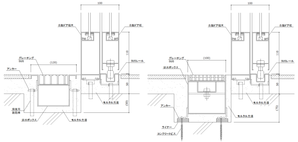
排水ユニット(スリットタイプ)自動ドア取り合い標準図
上段左図は、スリットタイプの排水ユニットを利用する一般的な事例です。下段左図は、ドア開放部の納まり図です、排水ユニットを自動ドアに近付けても、ドア部ではタイルが一部入ります。
上段右図は、自動ドア枠見込み内に排水ユニットを納める事例で、製品仕様によっては取付できないものもあります。排水ユニットはドア開放部のみとなります。
下段右図は、グレーチングを取り付けできない場合など、簡易的に排水をする事例です。自動ドアSUSレールの下にφ13程度のSUSパイプを取り付け雨水を排水します。またレールの横から抜く場合もあります。ただし、砂や埃が詰まり機能していない事例をよく見るため採用には注意が必要です。グレーチングが設置出来ない場合の苦肉の策という位置付けです。

グレーチングの工事は一般に金属工事ですが、バルコニーに出る引違いの掃き出し窓には、サッシに取り付くグレーチング製品があります。
メーカーによって、「ノンレール下枠グレーチング」や「ミニグレーチング」など呼び名はありますが、多くのサッシメーカーでラインナップされています。
このグレーチングをドア等に流用する事例を目にしますが、非常に簡易的な作りなため、出入りの頻繁なエントランス等で使用する事は推奨しません(メーカーカタログに記載があるわけでは無いですが、個人の経験に基づく意見です)

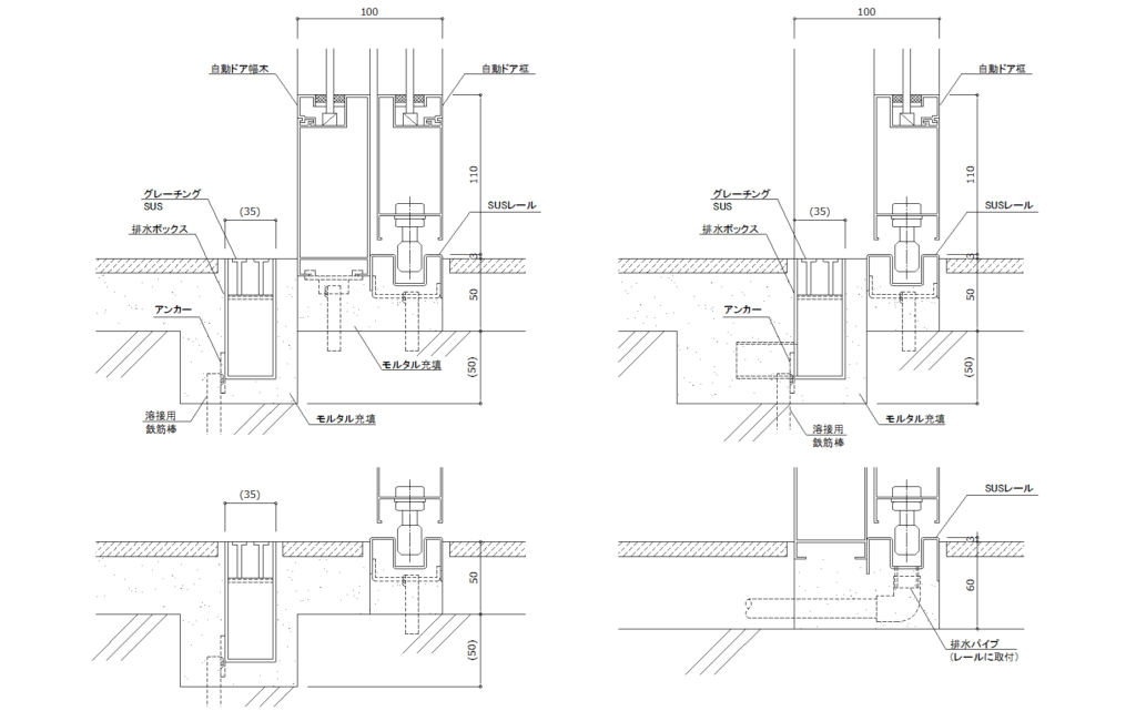
舗装用スリット溝蓋グレーチング
最後にあまり見ない焦れですが、U字溝のスリット側溝用グレーチング金物を流用した納まりです。アンカーの固定方法などはグレーチングの形状や仕様に合わせて検討が必要です。


コメント